【锦旗故事】温度与品质并存,选择极家轻松打造梦想新家
近日,来自上海闵行区的王先生为极家装修团队献上精心准备的锦旗,称赞极家设计师王胜、项目经理赵永刚“服务精益求精,工程尽心尽责”,表达了对极家家居装修服务的满意。
设计师介绍
王胜
极家家居·闵行店设计师
10年设计经验
王先生与太太在选择极家家居装修团队之前,曾对市场上的多家装修公司进行过深入的了解和比较。他表示,极家的专业水准和贴心服务让他深深感受到了团队的实力和责任心,彼此在沟通中收获良多,最终选定了极家。
几个月装修下来,王先生表示,“我深深体验到了极家施工团队的专业与用心。他们的施工质量绝对是一流的,不仅注重细节,而且让我省心省力。每次验收都让我惊喜与倍感满意!”
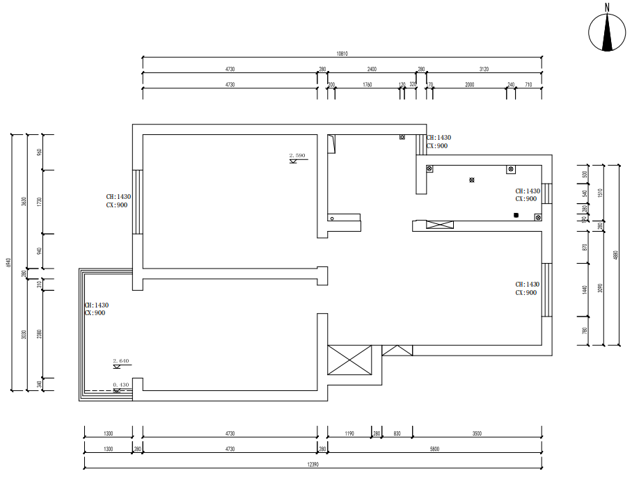
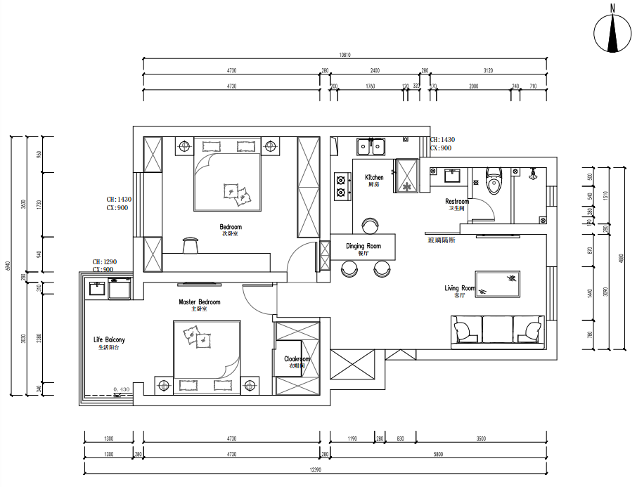
▲原始VS改造后平面布置图
(点击图片可放大查看)
房子从一个空的框架到一个温暖宜居的新家,设计师的精心规划是不可或缺的。在为王先生一家设计过程中,王胜设计师从业主原有的生活习惯中挖掘需求,根据业主家人不同的生活状态来规划房屋动线、材质运用、存储收纳等。
比如要确保有足够的空间珍藏跟随业主多年的家当,以及不断增长的购物欲和消耗品;而人的居住空间还要保持宽敞、整洁,住起来才舒服。新房正式竣工交付,业主一家对装修效果十分满意。
客厅整体空间简洁干净,大面积空间留白,赋予空间流动的灵动感。吧台与厨房完美融合,烹饪与享食,一切尽在咫尺间,生活因此而更加便捷与温馨。
卧房的设计沿袭了整体的风格,打造出柔和而静谧的休息环境,让人能够得到充分的休息。靠墙的位置巧妙地设计了一个步入式衣帽间,完美地满足了日常衣物收纳的需求,同时也为主卧增添了一处实用的功能区域。
好口碑不是广告做出来的,而是源于口耳相传。负责王先生家装修的项目经理赵永刚经常去到施工现场,用严格规范的施工标准,对现场工艺、安全、进度、质量等进行监督矫正,与业主共同见证理想家的落地过程。
每个项目节点赵经理都会在微信服务群向业主汇报。此外,极家还推出了“码上看工地”服务。业主只需要扫描二维码,就可以在家中查看施工现场,实现随时随地“云监工”,大大提升对项目的参与感和信任感。
此外,作为施工重中之重,赵经理严把质量关,工人做的不到位的,推到重来,处处为业主着想。所以项目竣工后来参观的邻居家人络绎不绝,夸赞极家装修高效专业。
极家家居凭借其卓越的品牌实力、专业的设计师团队、严谨的项目经理团队以及无微不至的匠心服务,赢得了众多业主的认可和好评。如果你正为装修烦恼,不妨考虑选择极家,让我们倾心为你打造一个健康、智能、舒适的品质新家!



感谢您能耐心阅读到这里
微信扫一扫
添加专属小客服领取
专属优惠好礼




浦西旗舰店:汶水路259号28幢C栋
浦东成山店:成山路2499号
闵行店:七莘路765弄6-9号
徐汇店:龙华西路585号3楼
大虹桥店:崧泽大道2599号2号楼
嘉定店:裕民南路1518弄新地国际广场2号楼
凯旋店:凯旋路2218号楼
卡蒂夫软装馆:上海静安区平陆路899号
更多精彩请关注![]()



